tetra
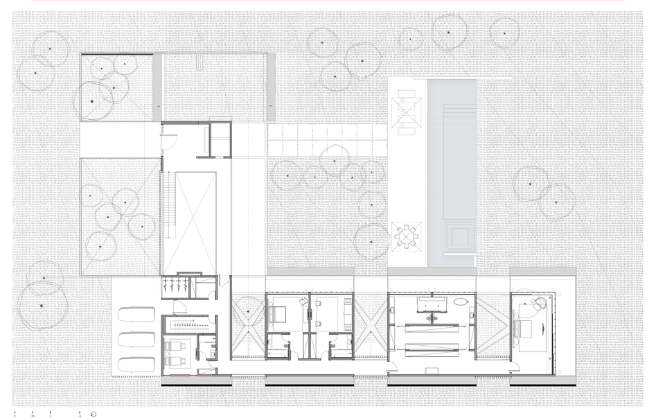
overcoming the considerable slope of the terrain, tetra rests on the highest level of the intervention area, where the prism is divided by gardens that create a biophilic experience for the residents and allow the architecture to breathe within these intervals.
the volumes were designed to protect the house’s privacy without making it formally opaque, instead directing it toward the main view and using the landscape that appears within the openings of the slab to create additional scenes that filter areas that might otherwise be exposed.
because of the division of the upper prism, the structure would naturally result in a forest of columns, which was resolved into four columns emerging from a single point, transforming this tree-like pillar into the suspension of the upper block and elevating the house’s structure into a sculptural element intrinsic to the project.
location: porto feliz, sp | brazil
year of completion: 2022
gross built area: 2,300 m²
photography: maíra acayaba














